Caccavo Group

Caccavo Group has extensive business interests in Tasmania, ranging from property and construction, indoor markets, the export of seafood, and production of specialty Tasmanian goods.

Subscribe to Caccavo Group for the latest news, updates and projects

R&R Investments

Commercial and Business Investments

  • Turn key ready to go
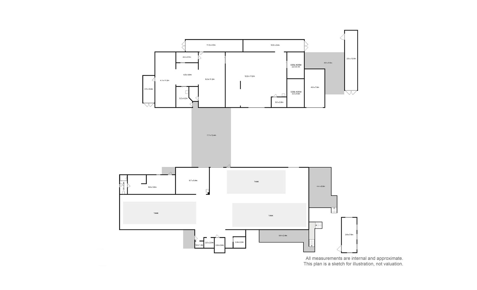
  • Available for lease
  • Export and Processing facility
  • 3 Tenancies
  • Live Holding

Contact Us

To learn more about Caccavo Group's extensive business interests in Tasmania.

Contact Us